33127 Martignas-sur-Jalle
Maison plain-pied dans quartier recherché
Maison plain-pied dans quartier recherché
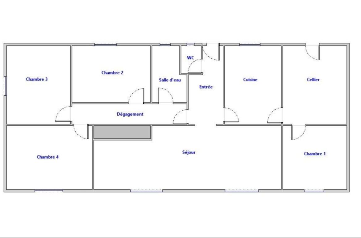
Cause achat en cours à ANDERNOS (promesse de vente signée avec signature fin mai) PARTICULIER vend maison plain-pied quartier très recherché et calme avec 4 chambres, grand séjour/salon avec cheminée (31 m²), cuisine équipée, cellier avec nombreux placard de rangements, salle d'eau, wc indépendants, 4 garages couverts fermés, 2 ateliers + places pour se garer dans le jardin, terrasse abritée pour manger dehors.
Sans vis à vis , proche des écoles, du collège et des crèches (tout à pied ), entre 5 et 10 minutes à pied du centre ville, 7 minutes à pied d'Intermarché, et 10 minutes à pied des arrêts de bus (Dassault, Thales, safran, lycée de Mérignac, Bordeaux).
À 200 m de la forêt et des départs de chemins forestiers (vers St Medard).
Volets roulants électriques, portail électrique.
Grand terrain arboré (1207 m²), piscinable, agrandissement possible, chauffage à gaz, toiture refaite en totalité facture à l'appui.
UNIQUEMENT DE PARTICULIER À PARTICULIER (est déjà en agence).
Autres photos sur demande.
PRIX 389900€ légèrement négociable vu que particulier à particulier (pas de commission d'agence).
1er contact par téléphone SVP.
Sans vis à vis , proche des écoles, du collège et des crèches (tout à pied ), entre 5 et 10 minutes à pied du centre ville, 7 minutes à pied d'Intermarché, et 10 minutes à pied des arrêts de bus (Dassault, Thales, safran, lycée de Mérignac, Bordeaux).
À 200 m de la forêt et des départs de chemins forestiers (vers St Medard).
Volets roulants électriques, portail électrique.
Grand terrain arboré (1207 m²), piscinable, agrandissement possible, chauffage à gaz, toiture refaite en totalité facture à l'appui.
UNIQUEMENT DE PARTICULIER À PARTICULIER (est déjà en agence).
Autres photos sur demande.
PRIX 389900€ légèrement négociable vu que particulier à particulier (pas de commission d'agence).
1er contact par téléphone SVP.
389 900 €
105 m²
Code Postal
33127
Ville
Martignas-sur-Jalle
Type de bien
Maison
GES
D
Classe énergie
D
Mise en ligne
13 février 2026
Nombre de vues
607