33140 Villenave-d'Ornon
Appartement T3 récent 2015 - 62,5 m² - RDC - Terrasse
Appartement T3 récent 2015 - 62,5 m² - RDC - Terrasse
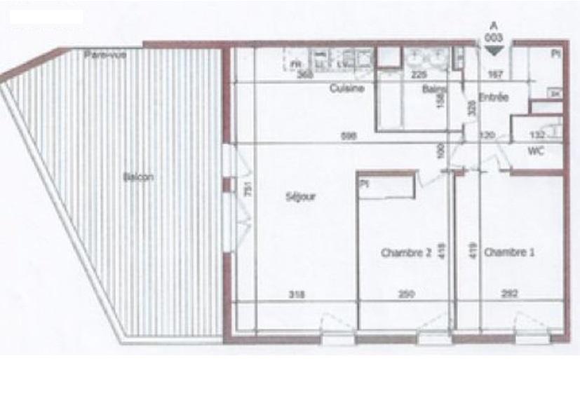
Appartement T3 situé en rez-de-chaussée à Villenave-d’Ornon, au sein d’une résidence récente de 2015, bien entretenue.
Il se compose d’une pièce de vie lumineuse avec cuisine ouverte, de deux chambres, d’une salle de bain et de WC séparés.
Une terrasse accessible depuis le séjour complète le bien, idéale pour un espace extérieur au quotidien.
Résidence récente.
DPE C.
Charges de copropriété maîtrisées 97€/mois.
Taxe foncière : 1156€.
Environnement pratique et bien desservi.
Vente directe propriétaire – bien libre.
Dossier complet disponible à distance (photos, diagnostics, charges, taxe foncière).
Première prise de contact par téléphone.
Possibilité de découvrir librement l’environnement avant organisation d’une visite intérieure.
Prix attractif pour faciliter une vente rapide.
Vente directe propriétaire – Agences et intermédiaires merci de s’abstenir
Il se compose d’une pièce de vie lumineuse avec cuisine ouverte, de deux chambres, d’une salle de bain et de WC séparés.
Une terrasse accessible depuis le séjour complète le bien, idéale pour un espace extérieur au quotidien.
Résidence récente.
DPE C.
Charges de copropriété maîtrisées 97€/mois.
Taxe foncière : 1156€.
Environnement pratique et bien desservi.
Vente directe propriétaire – bien libre.
Dossier complet disponible à distance (photos, diagnostics, charges, taxe foncière).
Première prise de contact par téléphone.
Possibilité de découvrir librement l’environnement avant organisation d’une visite intérieure.
Prix attractif pour faciliter une vente rapide.
Vente directe propriétaire – Agences et intermédiaires merci de s’abstenir
172 500 €
62 m²
Code Postal
33140
Ville
Villenave-d'Ornon
Type de bien
Appartement
GES
C
Classe énergie
C
Mise en ligne
9 janvier 2026
Nombre de vues
916