33127 Saint-Jean-d'Illac
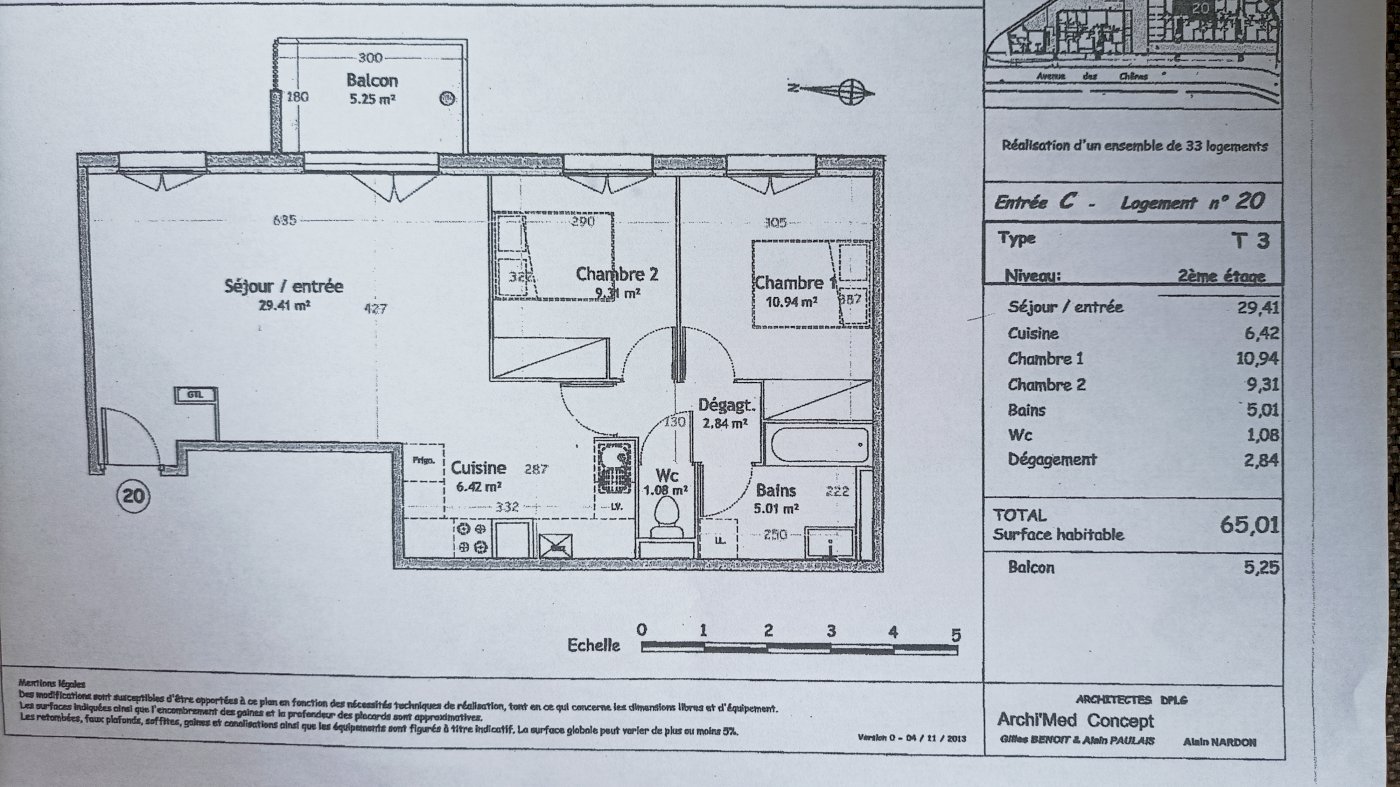
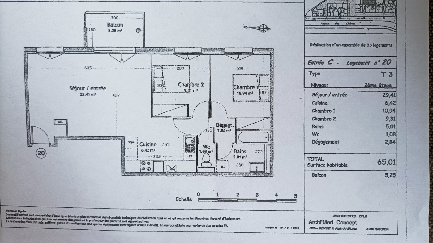
T3 - 65 m² avec parking couvert
T3 - 65 m² avec parking couvert
Appartement T3 de 2015 à St Jean d'Illac à mi distance entre aéroport Mérignac et bassin d'Arcachon. Petite résidence au centre au pied des commerces. Parking couvert. En très bon état. Disponible 01 mars 26.
238 000 €
65 m²
Code Postal
33127
Ville
Saint-Jean-d'Illac
Type de bien
Appartement
GES
C
Classe énergie
C
Mise en ligne
4 décembre 2025
Nombre de vues
197