33800 Bordeaux

T4 (81 m²) récent (2019) - Particulier - Grande loggia - Calme et bien agencé

T4 (81 m²) récent (2019) - Particulier - Grande loggia - Calme et bien agencé

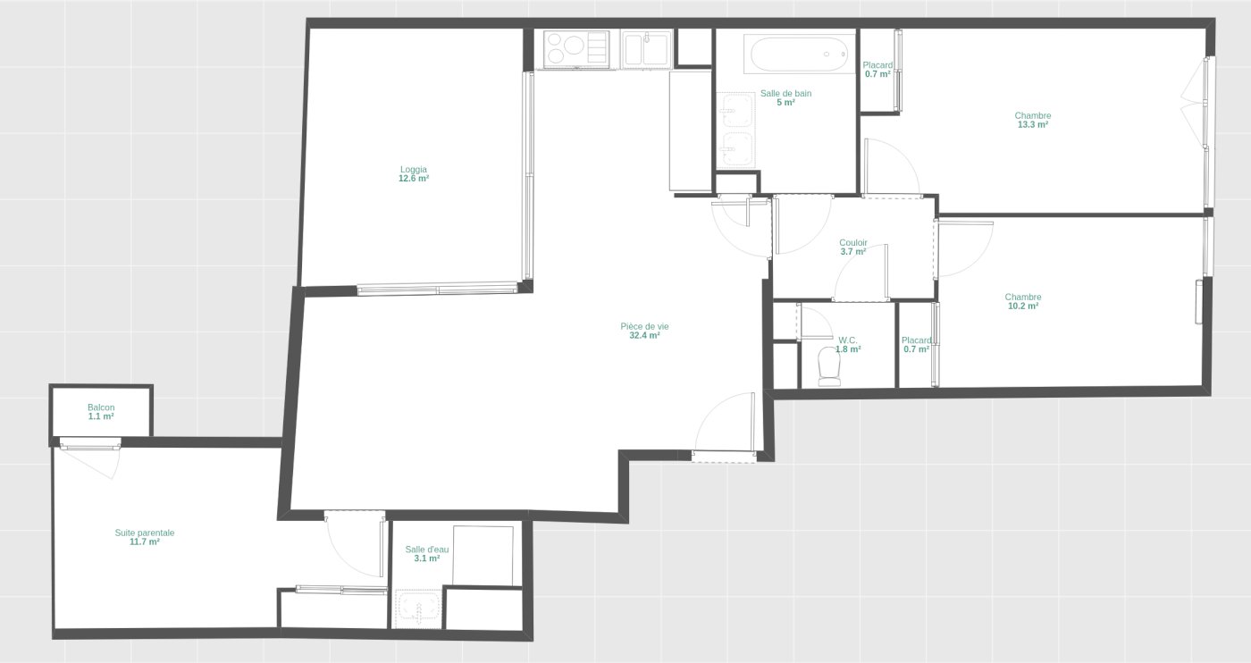
Très bel appartement T4 de 81 m², comme neuf (construction 2019), situé au 2ème étage (avec ascenseur) d'une résidence sécurisée. Traversant et doté de grandes fenêtres, son excellente isolation (DPE C) garantit un confort optimal (frais l'été, peu de chauffage l'hiver). Aucun travaux à prévoir, fibre déjà installée.

L'appartement est parfaitement agencé. Il s'ouvre sur une belle pièce de vie avec une cuisine moderne, ouverte et entièrement équipée, donnant sur une grande loggia de 12 m² (Sud-Ouest) ainsi qu'un balcon.

Il dispose de trois espaces distincts : un espace jour, un espace nuit et une suite parentale. La suite parentale possède sa propre salle d'eau. Les deux autres chambres de l'espace nuit partagent une salle de bain indépendante et des WC séparés. De nombreux placards intégrés sont également présents.

Situé dans une rue piétonne très calme, il est proche de tout : école, crèche, pharmacie, parcs (Meunier, Max Dormoy) et le marché des Capucins. L'accès à la gare St Jean se fait en 10 min à pied et le centre-ville en 15 min. Côté transports, vous êtes juste à côté des Trams C et D (Tauzia) et du Bus express G.

Un local à vélos est disponible dans la résidence. Possibilité d'acheter une place de parking privative et couverte en option (l'ascenseur descend jusqu'au parking).

Agences s'abstenir, merci. Dossier solide uniquement.
305 000 €
81 m²
Code Postal
33800
Ville
Bordeaux
Type de bien
Appartement
GES
C
Classe énergie
C
Mise en ligne
31 octobre 2025
Nombre de vues
1 171

Benjamin

Écrire au propriétaire