33127 Martignas-sur-Jalle
Maison plain-pied dans quartier recherché
Maison plain-pied dans quartier recherché
Suite achat en cours à ANDERNOS, nous vendons notre maison achetée il y a bientôt 11 ans
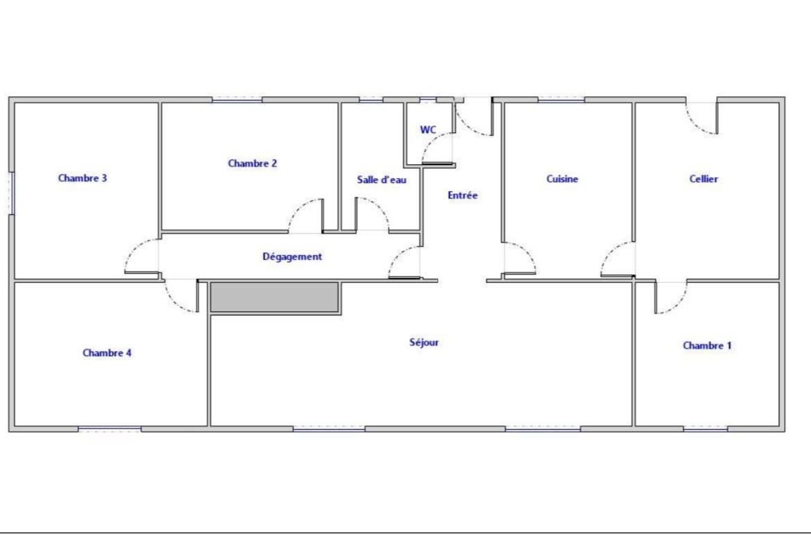
Elle est au calme et tout se fait à pied : commerces , écoles , bus pour aller à Bordeaux Ce pavillon plain- pieds est fait pour une famille (4 chambres ) mais aussi des retraités qui souhaitent être près du centre ville , de la forêt et pourront recevoir leurs enfants et petits enfants , un couple qui pourra accueillir sans souci famille et amis !! Elle dispose d’une grande pièce de vie séjour salon avec cheminée , une cuisine équipée , partiellement ouverte sur le salon avec passe plat , une salle d eau avec fenêtre , un wc séparé avec fenêtre également, un cellier avec point d eau et grands placards Il y a 2 garages couverts fermés , un petit atelier à côté, 2 autres garages couverts privés et un autre abri pour vélos , tondeuse …. Le jardin est spacieux 1207m, piscinable, les 2 terrasses sont conviviales ATTENTION: uniquement de particuliers à particuliers . Professionnels s abstenir : est déjà en agences . Autres photos sur demande 1er contact par téléphone SVP La toiture est neuve , les volets sont tous électriques , le portail est électrique
Le prix est négociable car pas de frais d agence
A bientôt !!
Elle est au calme et tout se fait à pied : commerces , écoles , bus pour aller à Bordeaux Ce pavillon plain- pieds est fait pour une famille (4 chambres ) mais aussi des retraités qui souhaitent être près du centre ville , de la forêt et pourront recevoir leurs enfants et petits enfants , un couple qui pourra accueillir sans souci famille et amis !! Elle dispose d’une grande pièce de vie séjour salon avec cheminée , une cuisine équipée , partiellement ouverte sur le salon avec passe plat , une salle d eau avec fenêtre , un wc séparé avec fenêtre également, un cellier avec point d eau et grands placards Il y a 2 garages couverts fermés , un petit atelier à côté, 2 autres garages couverts privés et un autre abri pour vélos , tondeuse …. Le jardin est spacieux 1207m, piscinable, les 2 terrasses sont conviviales ATTENTION: uniquement de particuliers à particuliers . Professionnels s abstenir : est déjà en agences . Autres photos sur demande 1er contact par téléphone SVP La toiture est neuve , les volets sont tous électriques , le portail est électrique
Le prix est négociable car pas de frais d agence
A bientôt !!
389 900 €
105 m²
Code Postal
33127
Ville
Martignas-sur-Jalle
Type de bien
Maison
GES
D
Classe énergie
D
Mise en ligne
13 février 2026
Nombre de vues
8 175