40220 Tarnos
T3 lumineux 66 m² | Portes de Bayonne
T3 lumineux 66 m² | Portes de Bayonne
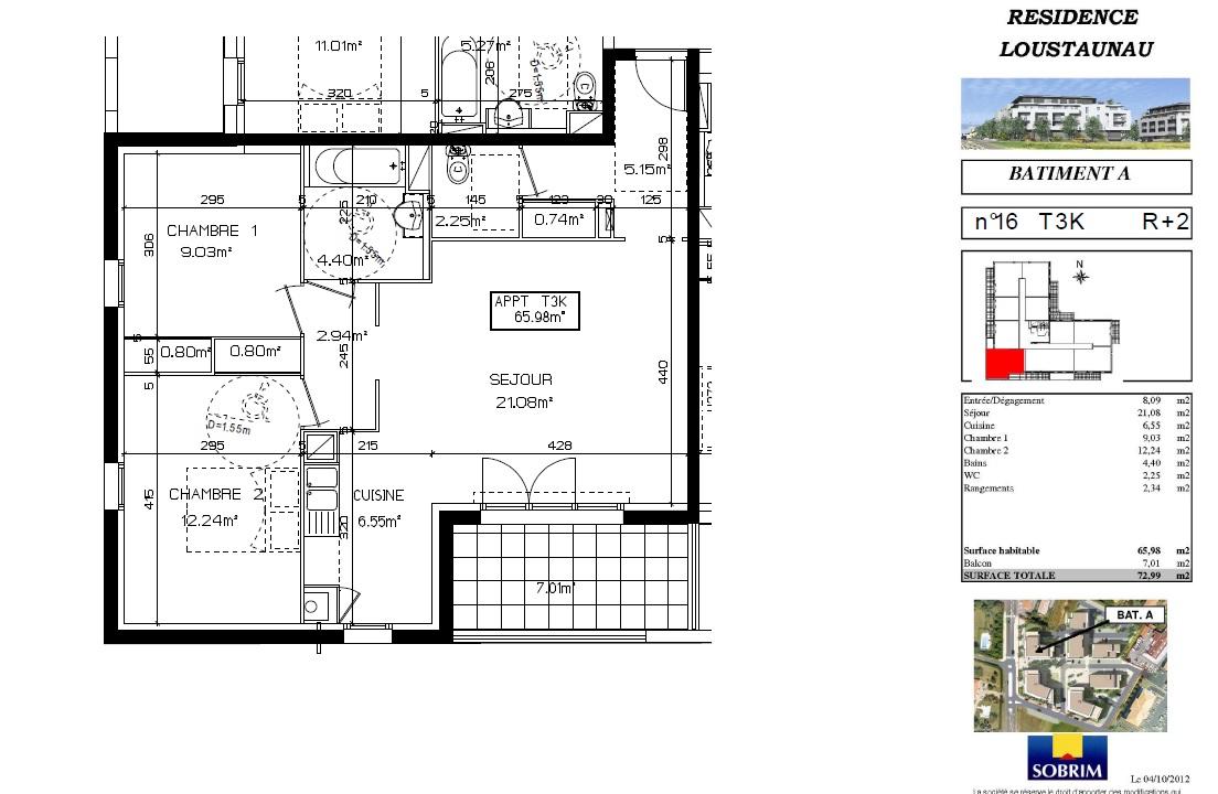
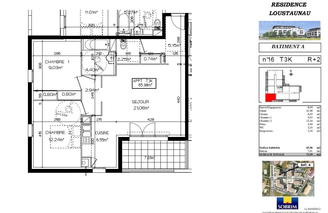
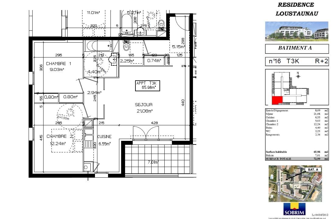
Idéal investisseur, résidence de 2015 au 3 rue Lise et Artur London à Tarnos, T3 bien agencé et lumineux exposé Sud avec terrasse, 2 chambres 13 m² et 10 m² placards aménagés, pièce de vie de 28 m² avec cuisine équipée.
Cave de 4 m² et place de parking sous-terrain.
Commerces et Tram Bus en pied d'immeuble, proche autoroute et plages.
Actuellement loué, libre pour la vente.
Charges 2024 > 939 €.
Foncière 2025 > 1072 €.
Cave de 4 m² et place de parking sous-terrain.
Commerces et Tram Bus en pied d'immeuble, proche autoroute et plages.
Actuellement loué, libre pour la vente.
Charges 2024 > 939 €.
Foncière 2025 > 1072 €.
260 000 €
66 m²
Code Postal
40220
Ville
Tarnos
Type de bien
Appartement
GES
B
Classe énergie
A
Mise en ligne
23 septembre 2025
Nombre de vues
8 536