40990 Saint-Paul-lès-Dax
À vendre T2 Saint-Paul-Lès-Dax - Lac de Christus
À vendre T2 Saint-Paul-Lès-Dax - Lac de Christus
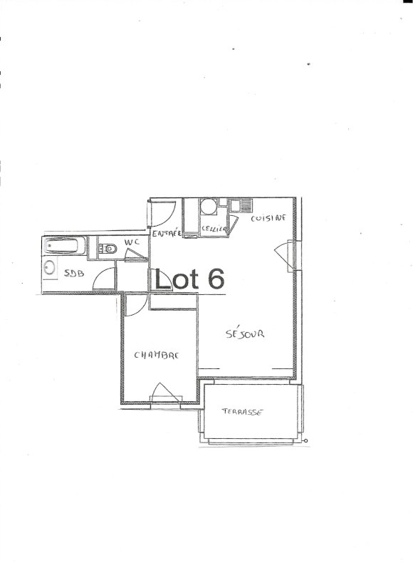
Appartement T2 de 48 m² avec terrasse et place de parking dans une petite résidence calme et sécurisée très bien entretenue avec accès direct au Lac de Christus (200m), dans un quartier résidentiel prisé et paisible où il fait bon vivre.
Bel appartement en rez-de-chaussée d’un bâtiment d’un seul étage, situé dans une résidence construite en 2010, composé d’une entrée avec placard intégré, d’une grande pièce de vie lumineuse donnant sur une agréable terrasse couverte carrelée et orientée à l’Est sans aucun vis-à-vis, d’une cuisine ouverte aménagée avec cellier attenant équipé d’étagères et d’un emplacement dédié au lave-linge.
Des radiateurs électriques à fluide caloporteur programmables assurent le chauffage, l’eau chaude sanitaire est produite par un cumulus électrique remplacé en septembre 2025.
Le coin nuit est composé d'une chambre spacieuse avec un grand placard intégré, d'une salle de bain et d'un WC indépendant.
La résidence est entièrement sécurisée (portail automatique avec télécommande et digicode pour l’accès au bâtiment).
Elle dispose d’un local à vélos ainsi que de jolis espaces verts.
Le ravalement des façades a été effectué en décembre 2025, il n’y a pas d’autres travaux prévus.
Elle est proche des nombreux commerces environnants et d’un pôle santé, dispose d’un accès facile au Lac de Christus offrant parcours de santé et autres chemins de randonnée et Vtt en pleine nature.
DPE en cours (à mettre à jour) : C pour énergie et A pour GES.
Faibles charges de copropriété de l’ordre de 50 € par mois environ, taxes foncières d’un montant de 837 € pour l’année 2025.
Vente directe entre particuliers, prix 155 000 € net sans frais d’agence et hors Frais d’Actes Notariés.
Bel appartement en rez-de-chaussée d’un bâtiment d’un seul étage, situé dans une résidence construite en 2010, composé d’une entrée avec placard intégré, d’une grande pièce de vie lumineuse donnant sur une agréable terrasse couverte carrelée et orientée à l’Est sans aucun vis-à-vis, d’une cuisine ouverte aménagée avec cellier attenant équipé d’étagères et d’un emplacement dédié au lave-linge.
Des radiateurs électriques à fluide caloporteur programmables assurent le chauffage, l’eau chaude sanitaire est produite par un cumulus électrique remplacé en septembre 2025.
Le coin nuit est composé d'une chambre spacieuse avec un grand placard intégré, d'une salle de bain et d'un WC indépendant.
La résidence est entièrement sécurisée (portail automatique avec télécommande et digicode pour l’accès au bâtiment).
Elle dispose d’un local à vélos ainsi que de jolis espaces verts.
Le ravalement des façades a été effectué en décembre 2025, il n’y a pas d’autres travaux prévus.
Elle est proche des nombreux commerces environnants et d’un pôle santé, dispose d’un accès facile au Lac de Christus offrant parcours de santé et autres chemins de randonnée et Vtt en pleine nature.
DPE en cours (à mettre à jour) : C pour énergie et A pour GES.
Faibles charges de copropriété de l’ordre de 50 € par mois environ, taxes foncières d’un montant de 837 € pour l’année 2025.
Vente directe entre particuliers, prix 155 000 € net sans frais d’agence et hors Frais d’Actes Notariés.
155 000 €
48 m²
Code Postal
40990
Ville
Saint-Paul-lès-Dax
Type de bien
Appartement
GES
A
Classe énergie
C
Mise en ligne
6 février 2026
Nombre de vues
622