24100 Bergerac
Maison
Maison
Maison bien située prés du centre ville et des commerces.
Le rez de chausée est composé d'un séjour, cuisine américaine, grand hall d'entrée, placard, WC indépendant, arrière cuisine, garage.
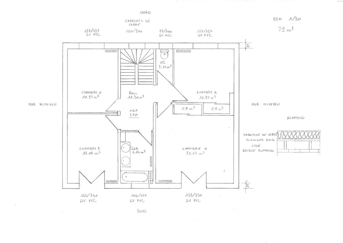
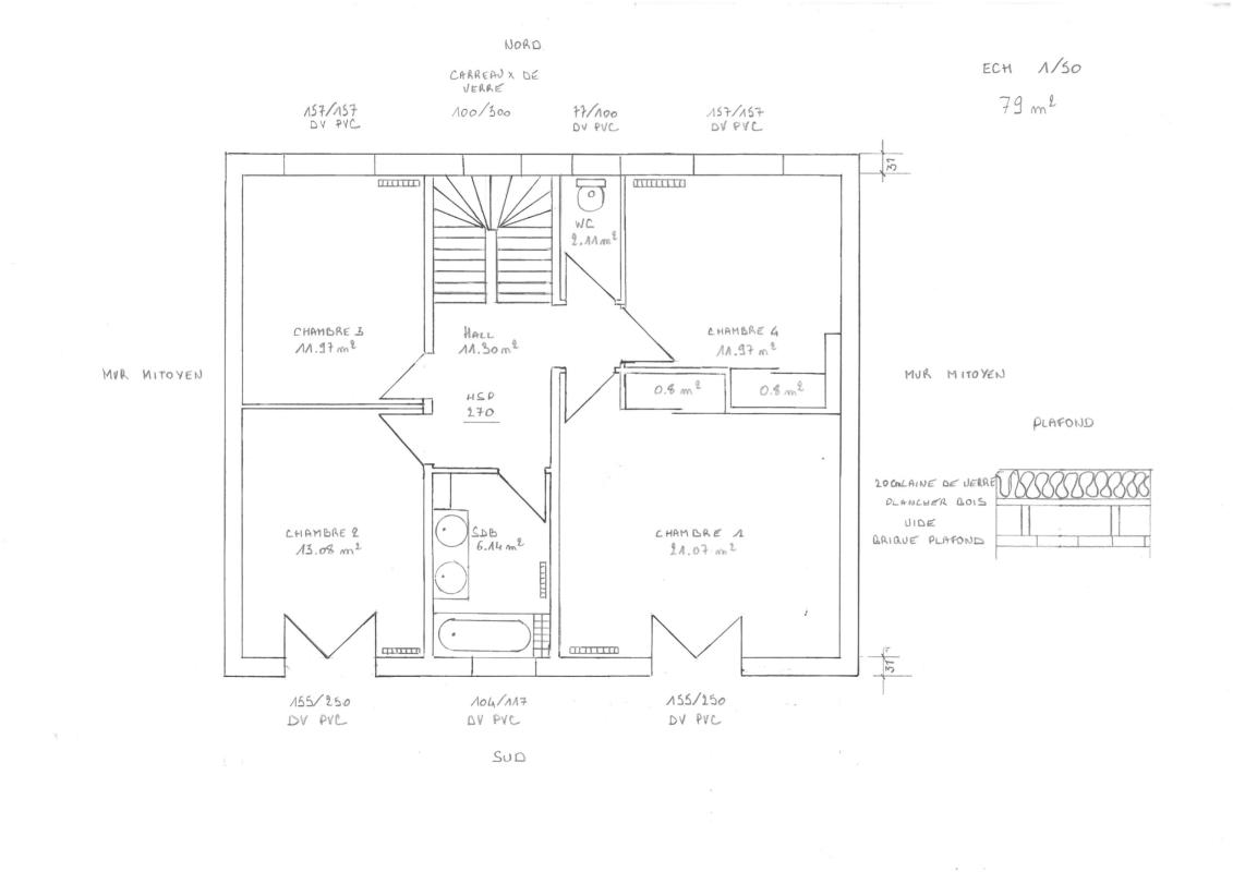
L'étage est composé de 4 chambres spacieuses et lumineuses, d'une salle d'eau avec (bac à douche extra-plat de 180/80, meuble double vasque), WC indépendant, hall.
Le chauffage est assuré par des radiateurs et une chaudière gaz condensation Viessmann, la grande chambre de l'étage est chauffée avec une clim réversible.
L'eau chaude est assurée par un chauffe eau électrique.
Sur l'arrivée d'eau froide générale, un adoucisseur d'eau est installé.
Le jardin est composé d'une terrasse carrelée de 50 m², d'une cabane de jardin de 20 m² en dur.
Possibilité de garer une voiture dans l'allé du jardin côté rue et dans le garage.
Le rez de chausée est composé d'un séjour, cuisine américaine, grand hall d'entrée, placard, WC indépendant, arrière cuisine, garage.
L'étage est composé de 4 chambres spacieuses et lumineuses, d'une salle d'eau avec (bac à douche extra-plat de 180/80, meuble double vasque), WC indépendant, hall.
Le chauffage est assuré par des radiateurs et une chaudière gaz condensation Viessmann, la grande chambre de l'étage est chauffée avec une clim réversible.
L'eau chaude est assurée par un chauffe eau électrique.
Sur l'arrivée d'eau froide générale, un adoucisseur d'eau est installé.
Le jardin est composé d'une terrasse carrelée de 50 m², d'une cabane de jardin de 20 m² en dur.
Possibilité de garer une voiture dans l'allé du jardin côté rue et dans le garage.
175 000 €
130 m²
Code Postal
24100
Ville
Bergerac
Type de bien
Maison
GES
D
Classe énergie
E
Mise en ligne
14 novembre 2025
Nombre de vues
1 224