87000 Limoges
Rare : bien d’exception de type T3/T4 (88m²) à ne pas manquer ! Secteur : Centre Hôtel de ViIle
Rare : bien d’exception de type T3/T4 (88m²) à ne pas manquer ! Secteur : Centre Hôtel de ViIle
PAS D’AGENCES IMMOBILIERES : MERCI.
Coup de cœur pour ce superbe appartement de 88m² de type T3/T4 !
Idéalement situé dans un quartier prisé de Limoges, à deux pas du centre-ville et des bords de Vienne (proche Mairie), ce bien allie charme, confort, luminosité, et modernité, composant une atmosphère unique et chaleureuse.
Niché au dernier étage d’une petite copropriété de standing calme et sécurisée (avec ascenseur), ce véritable « cocon » offre une combinaison exclusive de prestations.
Si vous rêvez d’un cadre de vie privilégié, ne tardez pas à venir le visiter ! Vous serez séduit(e) par ses nombreux atouts :
• Bien clé en main, rénové en 2023/2024 : plomberie, électricité, isolation coffrages + fenêtres (double vitrage), salle d’eau, WC, etc...
=> factures disponibles
• Double exposition
• Grande terrasse aménagée de 17m² (ensoleillée l’après-midi) équipée d’un store
• Grand balcon de 6m² équipé d’un store électrique neuf
• Vue dégagée sans vis-à-vis
• Place de parking privative sécurisée en extérieur + garage isolé (avec place de parking privative devant) + espace cave attenant
=> capacité totale de stationnement : 3 places
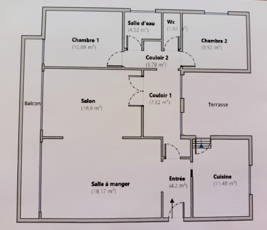
• Double séjour de 34m²
• Cuisine aménagée entièrement équipée (tous les équipements restent)
• 2 chambres
• Grand couloir lumineux pouvant faire office de bureau
Vidéo de l’appartement disponible sur demande.
Autres informations :
• Prix de vente : 279 900 €
• Surface loi Carrez : 88.42m²
• Dimensions des pièces : celles apparaissent sur le plan ont été réactualisées en 2024 après les travaux et peuvent différer très légèrement de ce dernier. Je peux vous les envoyer sur demande.
• DPE : classe D
• Petite copropriété de 16 lots d’habitation : aucune procédure en cours
• Charges mensuelles : 283.75 € (eau chaude - eau froide – chauffage - maintenance, entretien, et administration de la copropriété)
• Taxe foncière : 1 589 €
IMPORTANT :
En raison des nombreux démarchages téléphoniques, merci de bien vouloir me contacter en priorité via SMS en me communiquant vos disponibilités => je vous rappellerai dès que possible. Merci.
Coup de cœur pour ce superbe appartement de 88m² de type T3/T4 !
Idéalement situé dans un quartier prisé de Limoges, à deux pas du centre-ville et des bords de Vienne (proche Mairie), ce bien allie charme, confort, luminosité, et modernité, composant une atmosphère unique et chaleureuse.
Niché au dernier étage d’une petite copropriété de standing calme et sécurisée (avec ascenseur), ce véritable « cocon » offre une combinaison exclusive de prestations.
Si vous rêvez d’un cadre de vie privilégié, ne tardez pas à venir le visiter ! Vous serez séduit(e) par ses nombreux atouts :
• Bien clé en main, rénové en 2023/2024 : plomberie, électricité, isolation coffrages + fenêtres (double vitrage), salle d’eau, WC, etc...
=> factures disponibles
• Double exposition
• Grande terrasse aménagée de 17m² (ensoleillée l’après-midi) équipée d’un store
• Grand balcon de 6m² équipé d’un store électrique neuf
• Vue dégagée sans vis-à-vis
• Place de parking privative sécurisée en extérieur + garage isolé (avec place de parking privative devant) + espace cave attenant
=> capacité totale de stationnement : 3 places
• Double séjour de 34m²
• Cuisine aménagée entièrement équipée (tous les équipements restent)
• 2 chambres
• Grand couloir lumineux pouvant faire office de bureau
Vidéo de l’appartement disponible sur demande.
Autres informations :
• Prix de vente : 279 900 €
• Surface loi Carrez : 88.42m²
• Dimensions des pièces : celles apparaissent sur le plan ont été réactualisées en 2024 après les travaux et peuvent différer très légèrement de ce dernier. Je peux vous les envoyer sur demande.
• DPE : classe D
• Petite copropriété de 16 lots d’habitation : aucune procédure en cours
• Charges mensuelles : 283.75 € (eau chaude - eau froide – chauffage - maintenance, entretien, et administration de la copropriété)
• Taxe foncière : 1 589 €
IMPORTANT :
En raison des nombreux démarchages téléphoniques, merci de bien vouloir me contacter en priorité via SMS en me communiquant vos disponibilités => je vous rappellerai dès que possible. Merci.
279 900 €
88 m²
Code Postal
87000
Ville
Limoges
Type de bien
Appartement
GES
D
Classe énergie
D
Mise en ligne
8 avril 2026
Nombre de vues
1 032