64990 Lahonce
Maison T3 à 6kms de Bayonne
Maison T3 à 6kms de Bayonne
Maison récente à Lahonce, dans un quartier calme et verdoyant.
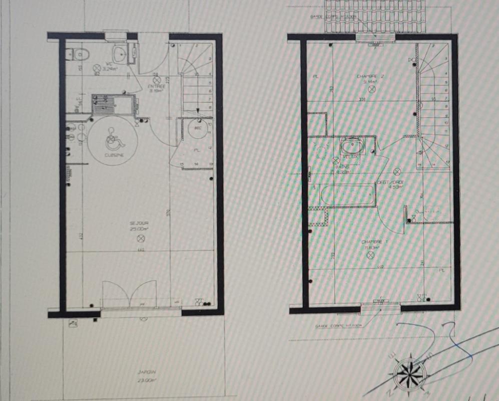
En parfait état d’entretien, cette maison mitoyenne de type 3, en duplex, de 61m², est optimisée au maximum.
Elle est composée :
• En RDC, d'un agréable et lumineux espace à vivre avec cuisine ouverte, le tout donnant sur un jardin privatif, et de WC indépendant.
• A l'étage, elle dispose, d'un espace nuit composé de 2 belles chambres, d’une salle de bain avec WC, ainsi que d’un coin bureau sur le palier.
Un jardin de 23m², 2 places de parking numérotées ainsi qu’une cave complètent ce bien.
En parfait état d’entretien, cette maison mitoyenne de type 3, en duplex, de 61m², est optimisée au maximum.
Elle est composée :
• En RDC, d'un agréable et lumineux espace à vivre avec cuisine ouverte, le tout donnant sur un jardin privatif, et de WC indépendant.
• A l'étage, elle dispose, d'un espace nuit composé de 2 belles chambres, d’une salle de bain avec WC, ainsi que d’un coin bureau sur le palier.
Un jardin de 23m², 2 places de parking numérotées ainsi qu’une cave complètent ce bien.
255 000 €
61 m²
Code Postal
64990
Ville
Lahonce
Type de bien
Maison
GES
B
Classe énergie
C
Mise en ligne
7 avril 2026
Nombre de vues
354