33650 Saint-Selve
Maison de village refaite à neuf
Maison de village refaite à neuf
Emménagez dans cette jolie maison au coeur du village de Saint-Selve, alliant confort moderne et proximité de toutes les commodités.
ATOUTS MAJEURS :
• Plain-pied refait à neuf
• DPE A : confort + économies d’énergie
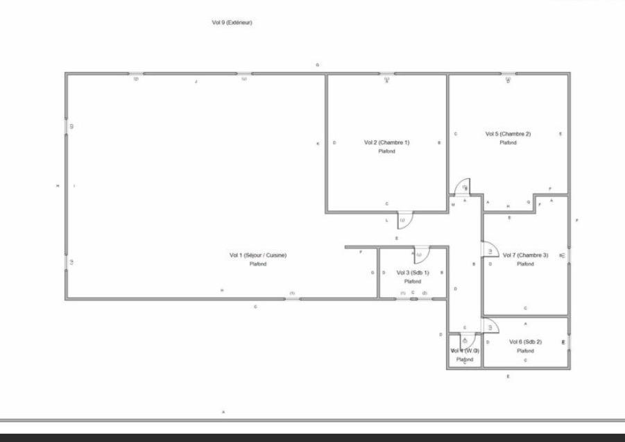
• Grande pièce de vie lumineuse
• Cuisine ouverte équipée
• 3 chambres avec emplacement placard
• 2 salles de bains (2 douches - 1 baignoire)
• 2 WC suspendus (dont 1 séparé)
• Terrasse bois de 40 m²
• Jardin paysagé avec arrosage automatique
• 2 places de parking privatives + portail automatique
CONFORT & ÉQUIPEMENTS :
• Chauffe-eau thermodynamique
• Climatisation réversible dans la pièce de vie
• Radiateurs à inertie connectés dans les chambres
• Volets roulants automatiques
• Double vitrage phonique
EMPLACEMENT : tout à pied !
• Commerces, marché, restaurant, pharmacie, pôle santé, école
• Arrêt de bus juste en face
• Bordeaux : 20 min via A62
• Gare Saint-Jean : 26 min
• Aéroport de Bordeaux : 25 min
DPE A - réalisé le 9 septembre 2025
Montant estimé des dépenses annuelles d'énergie pour un usage standard : entre 630 et 890 euros par an indexées aux années 2021, 2022 et 2023 (abonnements compris).
Vente direct propriétaire - pas de frais d'agence.
Taxe foncière env : 700 euros /an
ATOUTS MAJEURS :
• Plain-pied refait à neuf
• DPE A : confort + économies d’énergie
• Grande pièce de vie lumineuse
• Cuisine ouverte équipée
• 3 chambres avec emplacement placard
• 2 salles de bains (2 douches - 1 baignoire)
• 2 WC suspendus (dont 1 séparé)
• Terrasse bois de 40 m²
• Jardin paysagé avec arrosage automatique
• 2 places de parking privatives + portail automatique
CONFORT & ÉQUIPEMENTS :
• Chauffe-eau thermodynamique
• Climatisation réversible dans la pièce de vie
• Radiateurs à inertie connectés dans les chambres
• Volets roulants automatiques
• Double vitrage phonique
EMPLACEMENT : tout à pied !
• Commerces, marché, restaurant, pharmacie, pôle santé, école
• Arrêt de bus juste en face
• Bordeaux : 20 min via A62
• Gare Saint-Jean : 26 min
• Aéroport de Bordeaux : 25 min
DPE A - réalisé le 9 septembre 2025
Montant estimé des dépenses annuelles d'énergie pour un usage standard : entre 630 et 890 euros par an indexées aux années 2021, 2022 et 2023 (abonnements compris).
Vente direct propriétaire - pas de frais d'agence.
Taxe foncière env : 700 euros /an
386 700 €
106 m²
Code Postal
33650
Ville
Saint-Selve
Type de bien
Maison
GES
A
Classe énergie
A
Mise en ligne
20 décembre 2025
Nombre de vues
1 157