64480 Ustaritz

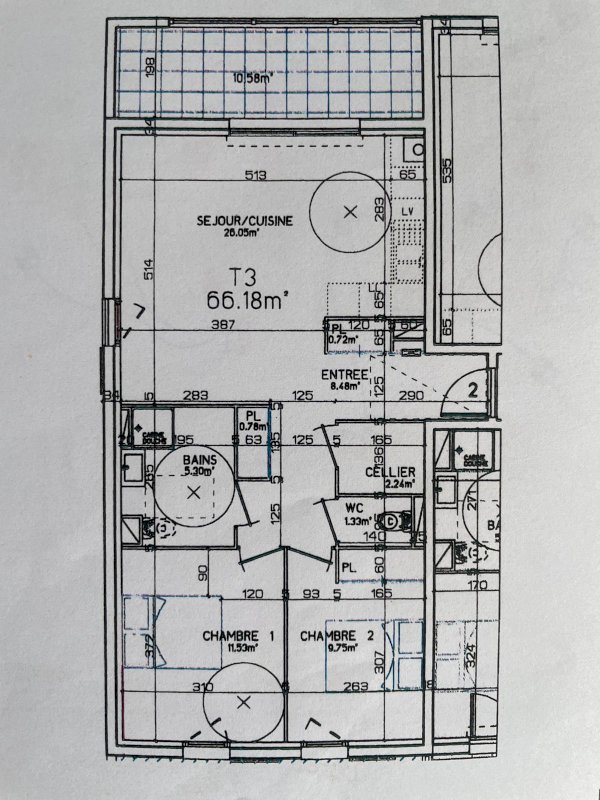
Grand T3 traversant

Grand T3 traversant

Au centre d’Ustaritz, dans une résidence récente, livrée en 2020, à côté du château Lota et de la future médiathèque. Ce bien rare allie confort, calme et proximité (commerces, écoles et transports). En d’autres termes, le tout à pied !

Grand T3 traversant situé au rez de chaussée, il comprend une cuisine moderne équipée et un séjour spacieux de 27 m² ouvrant sur un balcon surélevé de 11 m² vous offrant une vue sur la végétation, sans vis à vis.

Deux chambres confortables exposées sud, salle de bain avec douche XL et WC plus un indépendant. Enfin cellier avec un espace buanderie et de nombreux rangements.

2 places de parking, une place intérieure sécurisée et une extérieure complètent ce bien.

Montant estimé des dépenses annuelles d’énergies pour 2 adultes et 2 enfants autours de 90 € par mois sur 2024/5.

A propos de la copropriété : Nombre de lots 233.
Charges : 75 € par mois.

N’hésitez pas à nous contacter pour avoir plus d’informations concernant notre bien et/ou avoir plus de photos.
273 900 €
66 m²
Code Postal
64480
Ville
Ustaritz
Type de bien
Appartement
GES
C
Classe énergie
B
Mise en ligne
18 novembre 2025
Nombre de vues
294

Écrire au propriétaire