17180 Périgny
Appartement La Rochelle 2 pièces 48,6m² secteur Périgny Rompsay
Appartement La Rochelle 2 pièces 48,6m² secteur Périgny Rompsay
A VENDRE (sans frais d'agence), bel appartement spacieux type 2 situé au 2e et dernier étage d’une résidence BBC achevée en 2012 avec parking privé sécurisé. Il profite d’un séjour lumineux donnant sur un balcon orienté plein sud sans vis à vis, une cuisine aménagée, une grande chambre séparée, une salle d’eau avec WC et placards.
Parquet stratifié + peintures murs et plafonds refaits à neuf en 2022. Aucun travaux à prévoir. Chauffe-eau électrique (Thermor/Atlantic 200L) remplacé en 2022 (Sous garantie, facture à l'appui).
Possibilité d’inclure une partie des meubles dans la vente, déductible des frais de notaire.
LOCALISATION
Quartier calme, espaces verts très bien entretenus, à proximité du Canal de Rompsay (piste cyclable) et à 5 minutes à pied de toutes les commodités : zone commerciale de Beaulieu / Salle de sport / pharmacie / tabac / épicerie / Restaurants... Arrêt de bus juste en face de la résidence (ligne n°4).
INFORMATIONS GENERALES
- Année de construction : 2012
- Surface : 48,6m²
- 2e et dernier étage
- Sans ascenseur
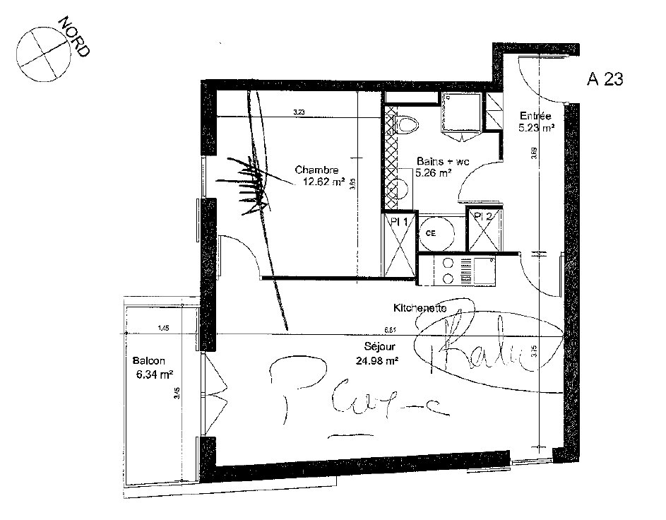
AGENCEMENT INTERIEUR
- Surface séjour / Cuisine : 25m²
- Exposition séjour : SUD EST (lumière traversante)
- Nombre de pièces : 2
- Chambre avec placard : 12,62m²
- Salle de bain avec placard + WC : 5,26m²
- Entrée avec placard : 5,23m²
- Chauffage électrique individuel
AGENCEMENT EXTERIEUR
- Balcon (orienté SUD) : 6,34m²
- Cave : 3,75m²
- Place de parking privé et sécurisé en sous-sol
- Local à vélo collectif
ASPECT FINANCIER
- Taxe foncière : 774€/an
- Charges copro : 254€/trimestre
- Charges électriques : 65€/mois
- Ravalement de façade prévu au printemps 2025. Reste à régler 35€/mois jusqu’à avril 2025
Premier contact par mail pour convenir d’un rdv par téléphone et/ou d’une visite.
Aucun démarchage commercial merci.
Parquet stratifié + peintures murs et plafonds refaits à neuf en 2022. Aucun travaux à prévoir. Chauffe-eau électrique (Thermor/Atlantic 200L) remplacé en 2022 (Sous garantie, facture à l'appui).
Possibilité d’inclure une partie des meubles dans la vente, déductible des frais de notaire.
LOCALISATION
Quartier calme, espaces verts très bien entretenus, à proximité du Canal de Rompsay (piste cyclable) et à 5 minutes à pied de toutes les commodités : zone commerciale de Beaulieu / Salle de sport / pharmacie / tabac / épicerie / Restaurants... Arrêt de bus juste en face de la résidence (ligne n°4).
INFORMATIONS GENERALES
- Année de construction : 2012
- Surface : 48,6m²
- 2e et dernier étage
- Sans ascenseur
AGENCEMENT INTERIEUR
- Surface séjour / Cuisine : 25m²
- Exposition séjour : SUD EST (lumière traversante)
- Nombre de pièces : 2
- Chambre avec placard : 12,62m²
- Salle de bain avec placard + WC : 5,26m²
- Entrée avec placard : 5,23m²
- Chauffage électrique individuel
AGENCEMENT EXTERIEUR
- Balcon (orienté SUD) : 6,34m²
- Cave : 3,75m²
- Place de parking privé et sécurisé en sous-sol
- Local à vélo collectif
ASPECT FINANCIER
- Taxe foncière : 774€/an
- Charges copro : 254€/trimestre
- Charges électriques : 65€/mois
- Ravalement de façade prévu au printemps 2025. Reste à régler 35€/mois jusqu’à avril 2025
Premier contact par mail pour convenir d’un rdv par téléphone et/ou d’une visite.
Aucun démarchage commercial merci.
228 000 €
48 m²
Code Postal
17180
Ville
Périgny
Type de bien
Appartement
GES
A
Classe énergie
C
Mise en ligne
10 décembre 2025
Nombre de vues
10 815