33210 Léogeats
Maison plain-pied 92 m² - 4 pièces - Léogeats (33210)
Maison plain-pied 92 m² - 4 pièces - Léogeats (33210)
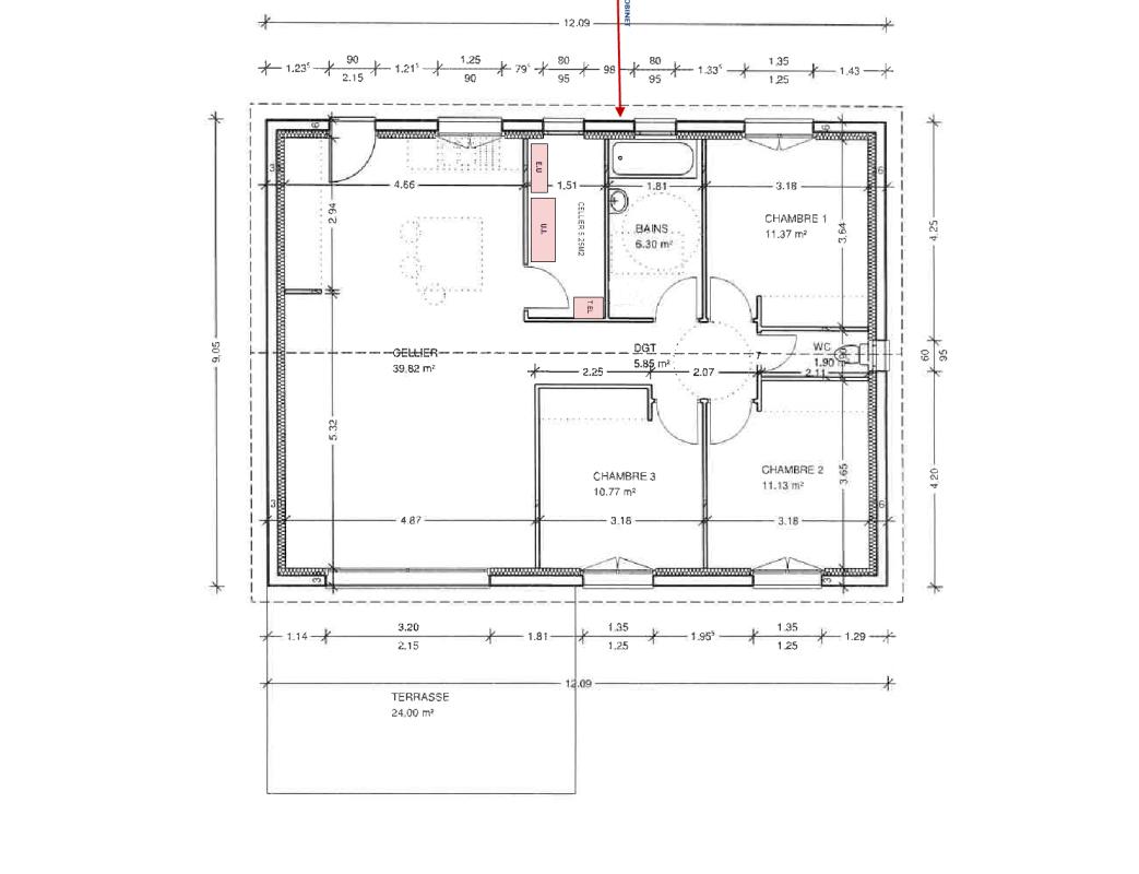
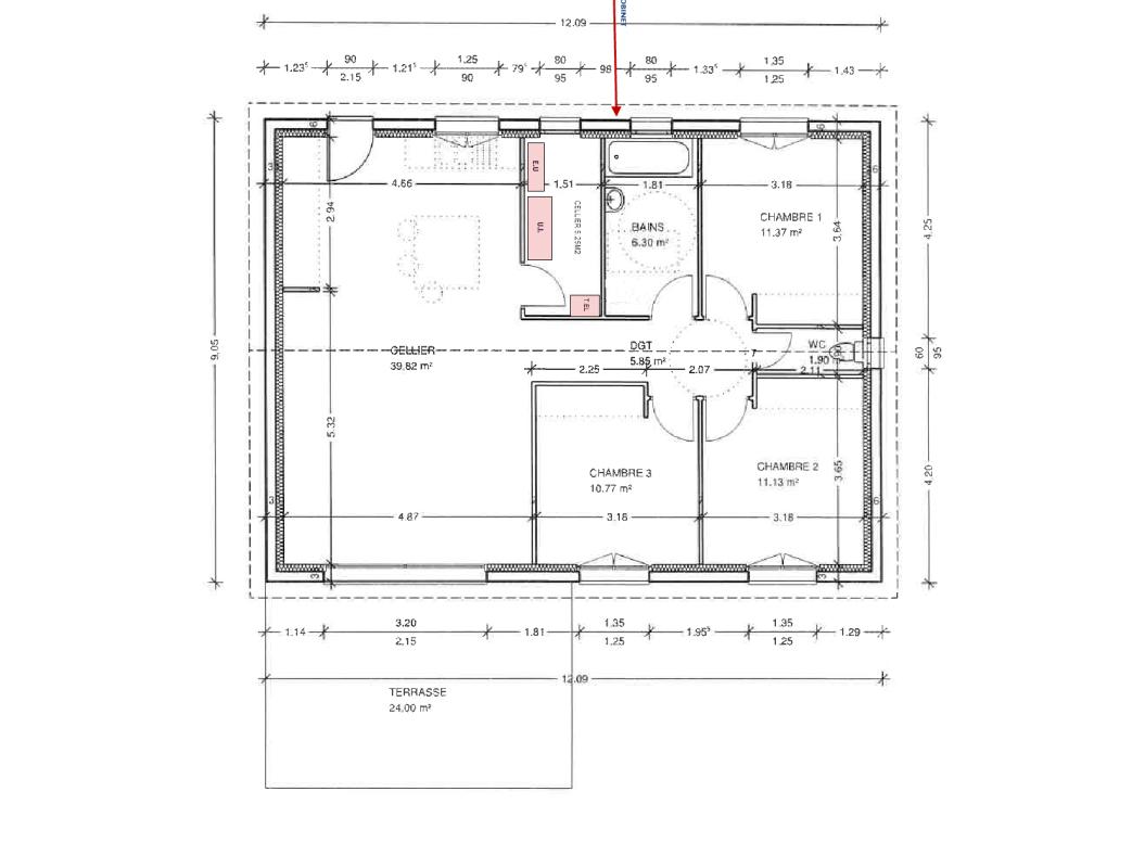
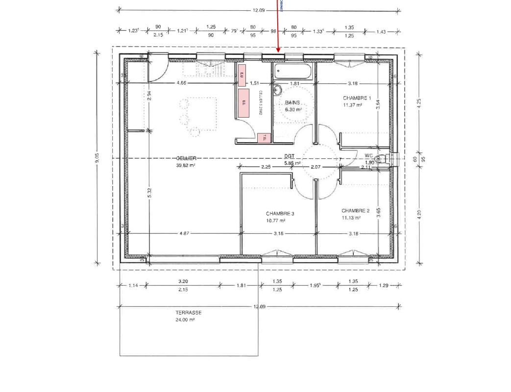
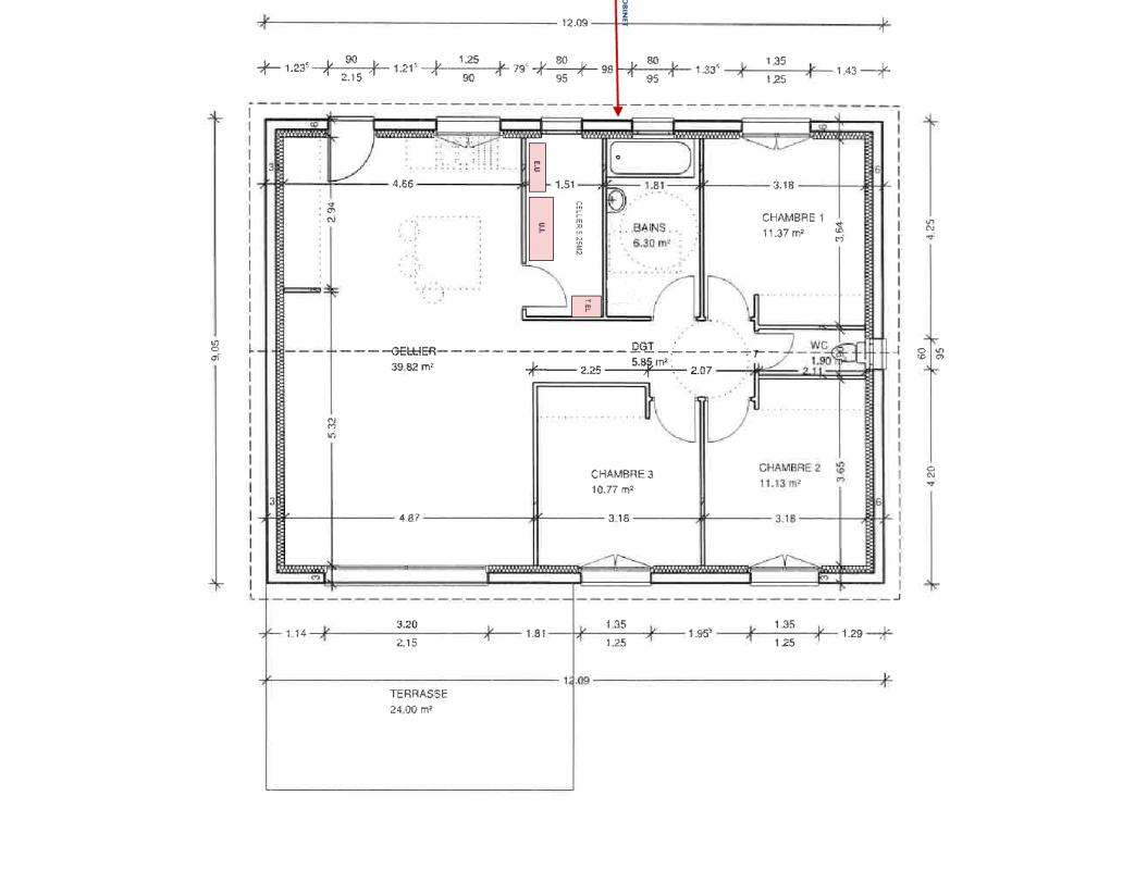
À Léogeats (33210), découvrez cette maison de plain-pied construite en 2015, d’une superficie d’environ 92 m², implantée sur une parcelle de 354 m² avec jardin clos.
Elle offre :
Un espace de vie lumineux avec salon – salle à manger ouvert sur une cuisine aménagée et équipée,
Un cellier / buanderie,
Trois chambres confortables,
Une salle de bain avec baignoire,
Un WC séparé.
Chauffage au sol pour un confort optimal.
À l’extérieur : une terrasse en bois conviviale donnant sur le jardin clos.
Disponible 15 novembre 2025.
Maison fonctionnelle, bien entretenue et clé en main, idéale pour une famille ou un premier achat.
Localisation recherchée : Léogeats, à proximité de Langon et des commodités.
Elle offre :
Un espace de vie lumineux avec salon – salle à manger ouvert sur une cuisine aménagée et équipée,
Un cellier / buanderie,
Trois chambres confortables,
Une salle de bain avec baignoire,
Un WC séparé.
Chauffage au sol pour un confort optimal.
À l’extérieur : une terrasse en bois conviviale donnant sur le jardin clos.
Disponible 15 novembre 2025.
Maison fonctionnelle, bien entretenue et clé en main, idéale pour une famille ou un premier achat.
Localisation recherchée : Léogeats, à proximité de Langon et des commodités.
215 000 €
92 m²
Code Postal
33210
Ville
Léogeats
Type de bien
Maison
GES
A
Classe énergie
A
Mise en ligne
23 novembre 2025
Nombre de vues
82